

通过Indigo,Woonpioniers的目标是使更多人接触到个人建筑和健康的建筑方式。Indigo利用设计、建造和材料之间的配合,将设计自由度同快速建造过程与最小的环境影响结合起来。每个Indigo住宅都由现场组装的独立预制构件组成,这些构件具有“抗弯”特性,不仅使平面可以自由布局,而且在墙和屋顶之间形成优美的曲线。构件的尺寸和屋顶倾斜度可以在一定范围内进行调整,它们由层压木梁制成并填有纤维素这种生物基绝缘材料,为屋顶、立面和室内装饰提供多种选择。
With Indigo, Woonpioniers aims to make personal architecture and a healthy way of building accessible to a wide audience. Thanks to an optimal interplay between design, construction and use of materials, Indigo combines design freedom with a quick building process and minimal environmental impact. Every Indigo home consists of separate, prefabricated elements that are assembled on site. These elements are characterized by a “moment resisting” bend that not only allows for a free layout of the floor plan, but at the same time yields a beautiful, curved line between wall and roof. The size and roof inclination of the elements themselves can, within certain margins, also be adjusted. The elements are made of beams from laminated wood and filled with cellulose, a bio based insulation material. Numerous options are possible for finishing the roof, facade and interior.
▼项目远景,distant view of the project © Henny van Belkom

▼项目近景,closer view of the project © Henny van Belkom

构件的灵活尺寸和平面的自由布局意味着设计师可以完美地应对个人需求和环境因素。虽然设计师经常为客户提供室内设计,但Indigo作为防风防水的“船体”,非常适合客户自己进行设计。设计师意识到这方面的需求在不断增长,许多人喜欢为自己的家做出有意义的贡献,并且这样也可以节省些许成本。设计师会在每个设计的早期阶段定制能源计划,以便在被动干预和智能技术之间找到最佳平衡。Indigo的起价约为15万欧元,可以通过公路运输在整个欧盟范围内运送,在欧盟以外,如果有合适的当地施工团队,Indigo也可以在当地完成建造。
The flexible dimensioning of the elements and the free layout of the floor plan means we can respond perfectly to individual needs and environmental factors. And although we often include the interior design for our customers, Indigo, as a windproof and watertight “hull”, is very suitable to be finished DIY. We notice a growing need in this regard: many people like to make a meaningful contribution to their own home and by doing so save a little on costs as well. Within each design process, we draw up the contours of an energy plan at an early stage, so that we can integrally find an optimal balance between passive interventions and smart technology. The costs of Indigo start at around € 150,000. We can deliver Indigo, by road transport, within the entire EU. Projects outside the EU are possible as well, provided that we can find the right local construction partners.
▼室内概览,overall view of the interior © Henny van Belkom

INDIGO TANJA & JOS:对环境影响最小的宽敞家庭住宅
INDIGO TANJA & JOS: A SPACIOUS FAMILY HOME WITH A MINIMAL ENVIRONMENTAL IMPACT
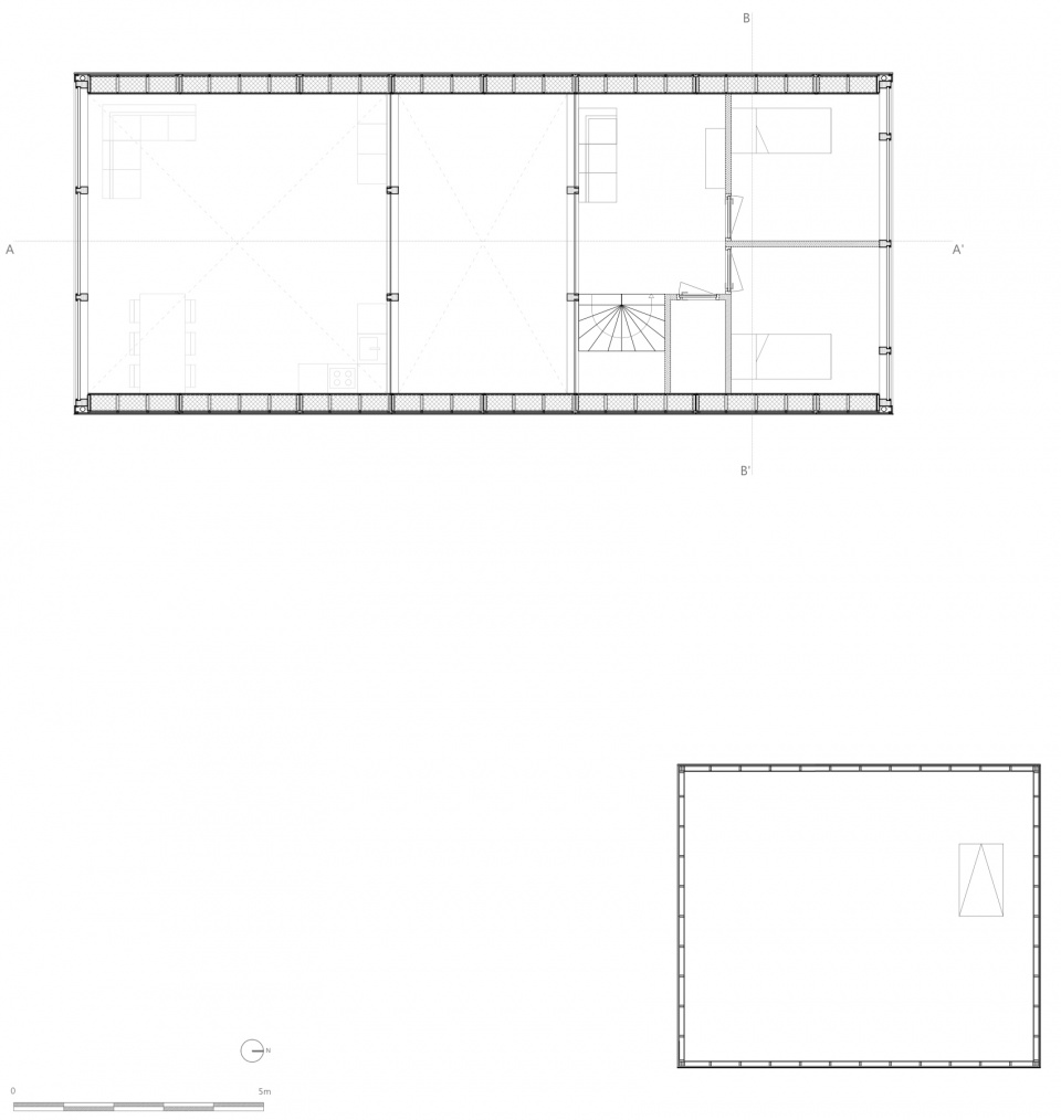
在此次Indigo的设计中,Tanja和Jos热情地与设计师一起画了草图。当客户意识到他们正在设计自己的家时,设计师感到很荣幸,这也证明Indigo是灵活的框架。房屋具有巧妙的空间布局:客厅和后部卧室通过宽敞的门厅隔开,Tanja和Jos可以在门厅举办讲座和室内音乐会等小型活动。这种分区也使房屋形成整洁的、独立的氛围区。
When designing an Indigo for Tanja and Jos they themselves enthusiastically sketched along with us. When our customers get the feeling they are designing their own home, this for us is an honour, and proofs that Indigo, as a flexible framework. The house has a clever spatial lay-out: the living area and “the sleeping house” in the back are separated by a spacious hall where Tanja and Jos can organize cozy events: lectures and room concerts, for example. This zoning also yields smart, separated climate zones.
▼宽敞的门厅,spacious hall © Henny van Belkom

▼从门厅望向客厅,view to the living room from the hall © Henny van Belkom

▼客厅,living room © Henny van Belkom

▼墙和屋顶之间优美的曲线 © Henny van Belkom
the beautiful, curved line between wall and roof

▼餐厅&厨房,dining room & kitchen © Henny van Belkom


▼从走廊望向客厅,view to the bedroom from the corridor © Henny van Belkom

▼一层卧室,bedroom on the ground floor © Henny van Belkom

▼二层卧室,bedroom on the first floor © Henny van Belkom

▼俯瞰生活区域,overlooking the living area © Henny van Belkom

这座Indigo完全依靠电力运行,只要所需电力可以持续产生,这就是清洁的选择。由于周围树木形成大量树荫,电力需要在附近集体生产。地暖也可以冷却,由气取热式热泵提供动力。Woonpioniers的合作施工团队完成了包括饰面、内墙和室内的门在内的施工工作,厨房和浴室则由客户自己完成。
This Indigo runs fully on electricity, a clean choice, provided that the required electricity is generated sustainably. Because the surrounding trees give a lot of shade, in this case the energy is generated within a collective project nearby. The underfloor heating, which can also cool, is powered by an air-to-water heat pump. This project was delivered by our construction partners up to and including wall finishes, interior walls and interior doors. The clients themselves took care of the kitchen and bathroom.
▼浴室,bathroom © Henny van Belkom

▼一层平面图,ground floor plan © Woonpioniers

▼二层平面图,first floor plan © Woonpioniers

▼立面图,elevations © Woonpioniers

▼剖面图,section © Woonpioniers




